标题
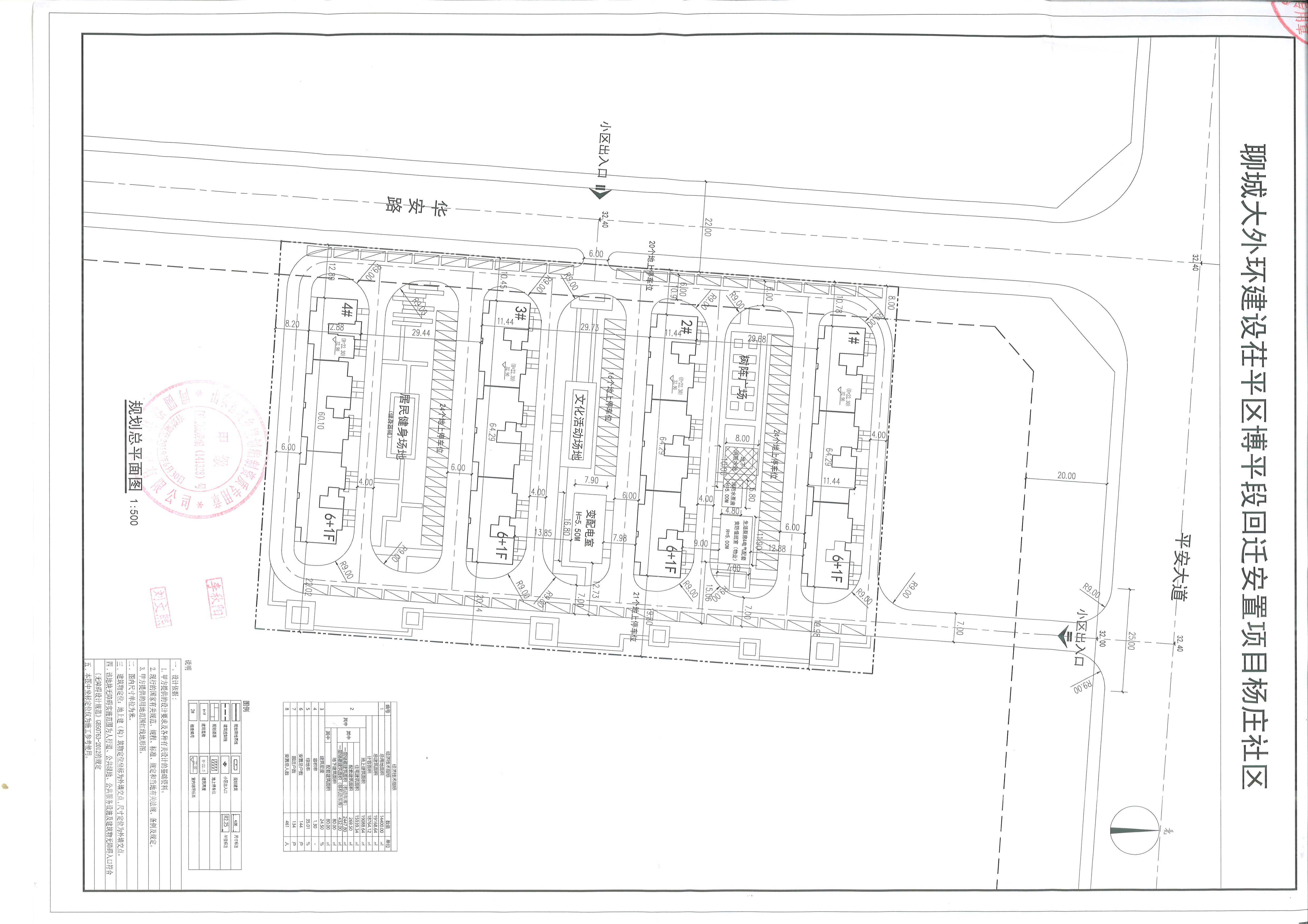
聊城大外环建设茌平区博平段回迁安置项目规划许可审批结果
索引号
1137152300443640XK/2021-26846031
分类
批准结果信息
发布日期
2021-06-30
发布单位
博平镇人民政府





